1401 22ND AVENUE, TUSCALOOSA, AL, 35401
1401 22ND AVENUETUSCALOOSA, AL 35401




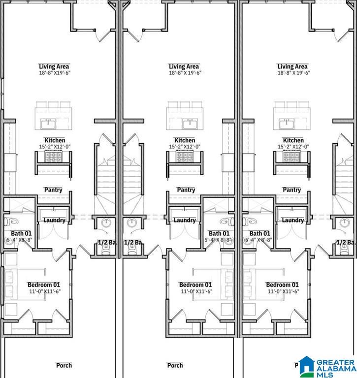
Under construction now and planned for completion in Summer 2026, 1401 22nd Avenue will offer brand-new construction just minutes from The University of Alabama. This 3-bedroom, 3.5-bath townhome is thoughtfully designed with an open-concept layout, durable LVP flooring, and modern finishes throughout. The kitchen features a gas range, while the main-level master suite includes a spacious walk-in closet and a beautiful walk-in shower. Upstairs, two additional bedrooms each feature private baths. With its prime location near UA and stylish design, this townhome is a rare opportunity for students, investors, or anyone seeking low-maintenance living close to campus. Photos are of a similar townhome across the street, finishes and floorplan of new development will be moderately different.
| 19 hours ago | Listing updated with changes from the MLS® | |
| 2 months ago | Status changed to Pending | |
| 2 months ago | Price changed to $699,900 | |
| 3 months ago | Listing first seen on site |
IDX information is provided exclusively for consumers’ personal, non-commercial use, and may not be used for any purpose other than to identify prospective properties consumers may be interested in purchasing. The content of this site is not guaranteed accurate by the MLS. Listing source GALMLS.
Copyright 2026 Greater Alabama MLS, Inc.

Did you know? You can invite friends and family to your search. They can join your search, rate and discuss listings with you.